pre-designed plans

We offer pre-designed packages for detached ADUs as well as garage conversions and additions.

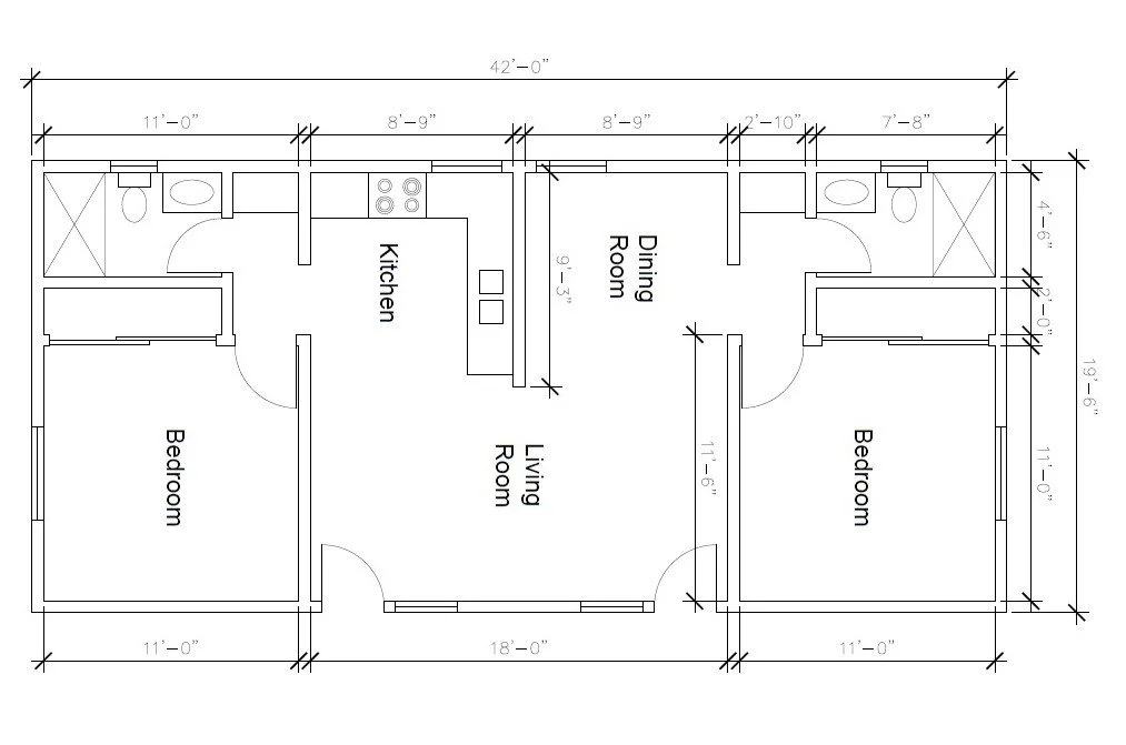
819 Square foot ADU

2 Bedrooms

2 Full Bathrooms

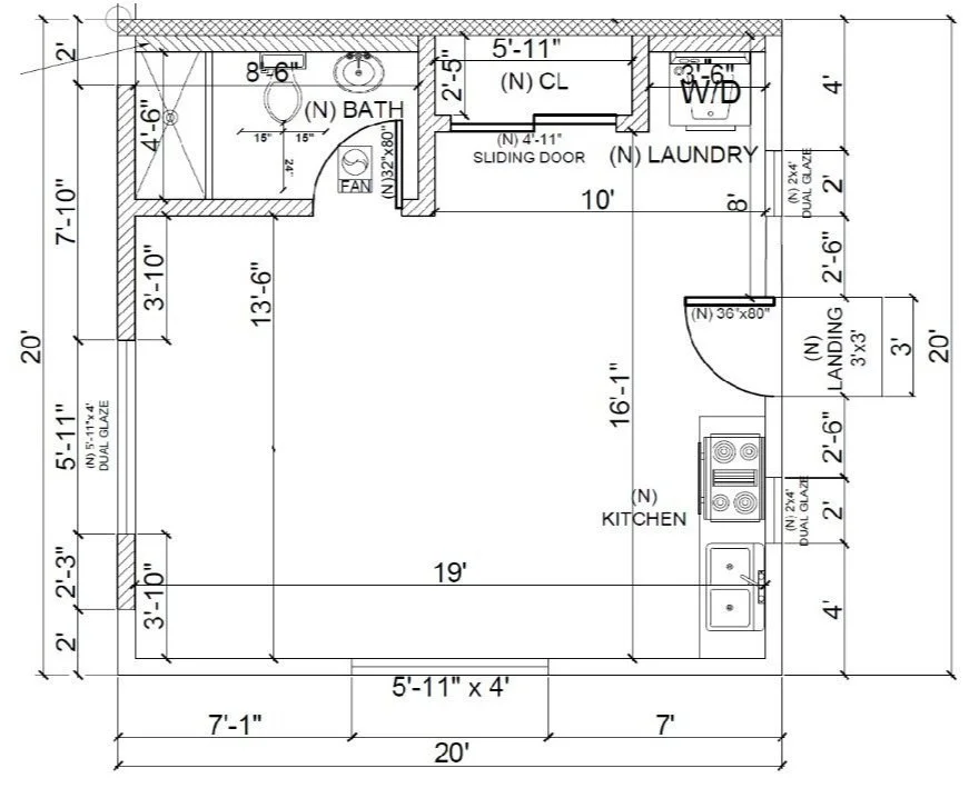
400 SQUARE FOOT GARAGE CONVERSION

Studio

1 Full Bathroom

1,200 Square foot ADU

3 Bedrooms

2 Full Bathrooms

750 SQUARE FOOT GARAGE addition

2 Bedrooms

2 Full Bathrooms